Skip to content

ATTRAKTIVE BÜROFLÄCHE MIT SHOWROOM ZU VERMIETEN

Fläche:

ca. 410 m²

Mietkosten:

auf Andrage

Verfügbar ab:

23.01.2026

Stadtteil:

Oststadt

Kontaktdaten:

Karlsruher Fächer GmbH & Co. Stadtentwicklungs-KG

0721/133-2412

alterschlachthof@kfg.karlsruhe.de

Im Zusammenspiel aus historischem Baubestand und neuen innovativen Nutzungen hat sich der Alte Schlachthof zum kreativen Anziehungspunkt der Stadt entwickelt. Wo einst mit lebendem Vieh gehandelt, Fleisch produziert und verkauft wurde, sind Büros und Ateliers für Kultur- und Kreativschaffende und künstlerisches
Gewerbe sowie Veranstaltungs- und Gastronomieräume entstanden.


Das Gebäude Alter Schlachthof 51 wurde 2015 als größtes zertifiziertes Passivhaus Baden-Württembergs fertiggestellt und ergänzt mit einer Reihe weiterer Neubauten den historischen Gebäudebestand des Alten Schlachthofs.
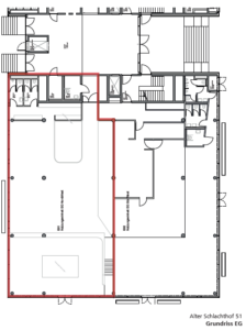
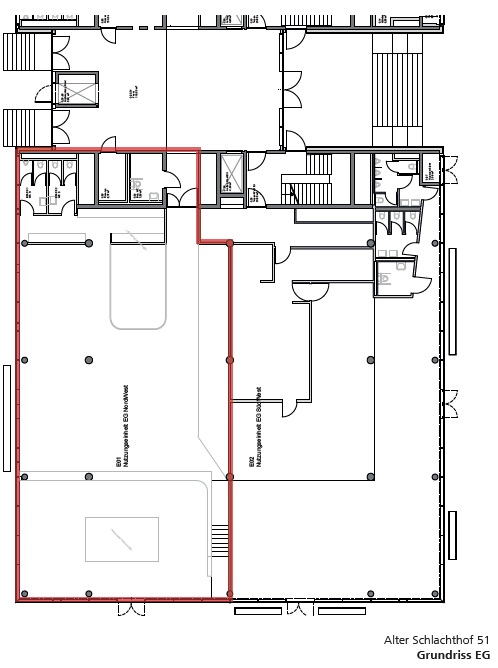
Die zu vermietende Fläche befindet sich in Erdgeschosslage und umfasst insgesamt ca. 410 m². Die großzügigen und lichtdurchfluteten Räume bieten vielfältige Nutzungsmöglichkeiten von klassischem Büroarbeiten bis zur effektvollen Produktpräsentation. Ein abgetrenntes Raummodul kann z.B. für Besprechungen
genutzt werden. In der vorhandenen hochwertigen Küchenzeile müssen lediglich die benötigten Geräte ergänzt werden. Die Räume sind teilmöbliert (Einbauschränke, bewegliches Mobiliar).


Ausstattung (Auszug):


• moderne Klima- und Gebäudetechnik
• Glasfaseranschluss
• barrierefreier Zugang
• schallabsorbierende Decken
• Estrich mit Trittschalldämmung
• Bodenbelag: Bodenbeschichtung (erneuert), Hochglanz-Laminat
• hochwertige Einbaumöbel
• hochwertiges Mobiliar kann bei Bedarf übernommen werden
• Besprechungsraummodul als Glaswand
• hochwertige Küchenzeile (ohne Geräte)
• Möglichkeit der Außennutzung (Aurazone)
• direkte ÖPNV-Anbindung
• gastronomische Angebote und Nahversorgung in unmittelbarer Umgebung
• Parkmöglichkeiten mit Berechtigung im Gebiet


Die Mietfläche ist ab sofort verfügbar.
Mietkonditionen erhalten Sie gerne auf Anfrage.